DETAILS
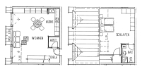
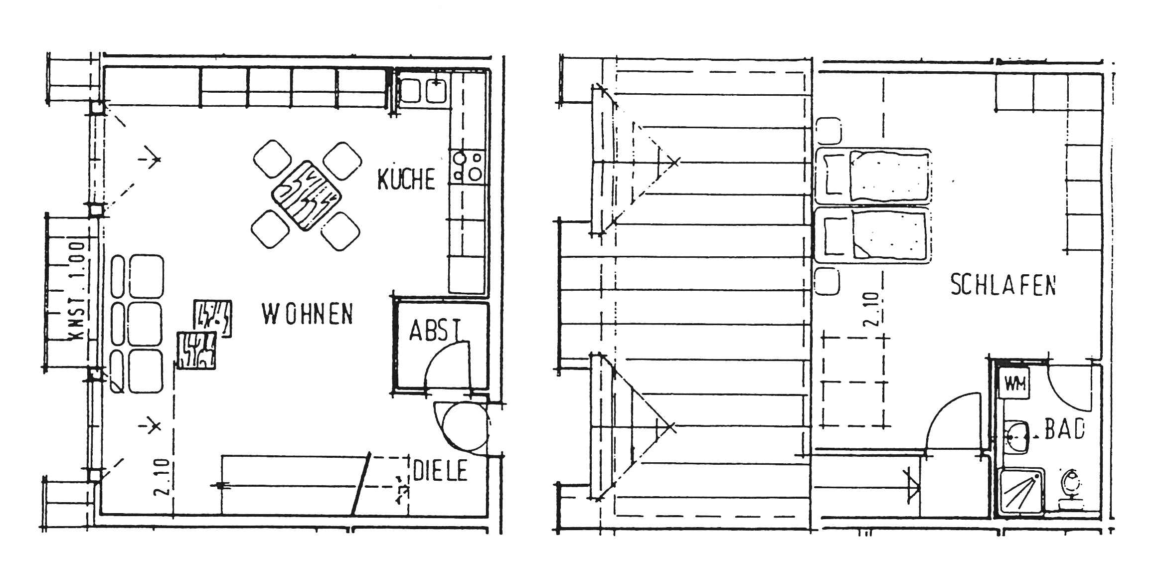
2-Raum-Maisonettenwohnung, 71,8 m² im DG, ruhige Lage in Gera-Aga
2-Raum-Maisonettenwohnung in grüner, ruhiger Lage im nördlichen Stadtteil Aga. Die Wohnung, mit amerikanischer Küche, Abstellraum und Blick ins Grüne, ist im DG einer kleinen Wohnanlage mit Pkw-Stellplätzen und Tiefgarage gelegen.
| Räume | 2 |
| Wohnfläche (ca.) | 71,8 m² |
| Kaltmiete (zzgl. NK) | 435,00 € |
| Nebenkostenvorauszahlung | 240,00 € |
| Gesamtmiete | 675,00 € |
| Kaution | 870,00 € |
| Etage/Lage | DG links |
| Ort | Gera-Kleinaga |
| Energieverbrauch | 147,9 kWh/(m²*a) |
| ID | 1300-23 |
Ausstattung
- Bad mit Dusche
- Pkw-Stellplatz möglich







