DETAILS
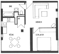
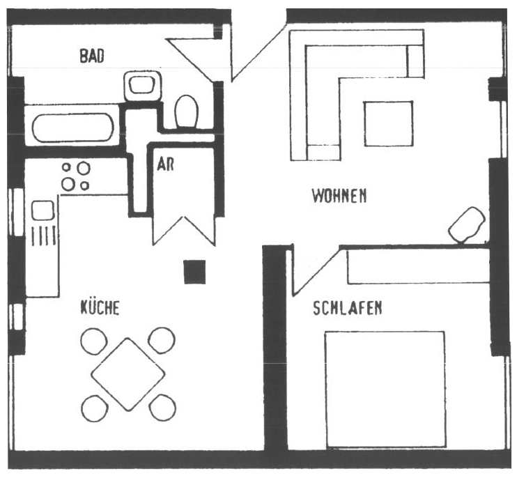
2-Raum-Wohnung, 56,0 m², Lift, Bad mit Wanne, Kfz-Stellplatz möglich.
2-Raum-Wohnung mit offenem, hellem Grundriss. Bad mit Wanne & Fenster, Küche mit Fenster, Lift. Wohn- & Schlafzimmer sind straßenabgewand, zum inneren einer Wohnanlage gelegen. Pkw-Stellplatz möglich.
| Räume | 2 |
| Wohnfläche (ca.) | 56,0 m² |
| Kaltmiete (zzgl. NK) | 350,00 € |
| Nebenkostenvorauszahlung | 200,00 € |
| Gesamtmiete | 550,00 € |
| Kaution | 700,00 € |
| Etage/Lage | 1. OG rechts |
| Ort | Gera |
| Energieverbrauch | 146,5 kWh/(m²*a) |
| ID | 2100-C-22 |
Ausstattung
- Aufzug
- Bad mit Fenster, Wanne und separatem WC
- Küche mit Fenster
- Tiefgaragenstellplatz möglich


