DETAILS
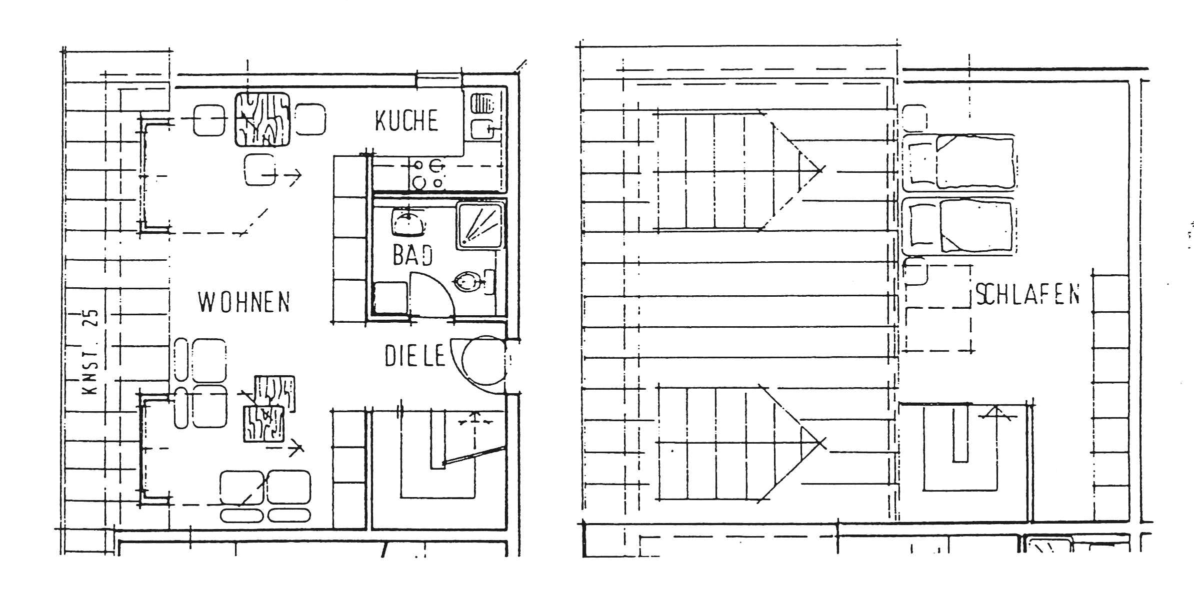
2-Raum-Maisonettenwohnung, 55,6 m² im DG, ruhige Lage in Gera-Aga
2-Raum-Maisonettenwohnung in grüner, ruhiger Lage im nördlichen Stadtteil Aga. Die Wohnung, mit amerikanischer Küche und Blick ins Grüne, ist im DG einer kleinen Wohnanlage mit Pkw-Stellpllätzen und Tiefgarage gelegen.
| Räume | 2 |
| Wohnfläche (ca.) | 55,6 m² |
| Kaltmiete (zzgl. NK) | 330,00 € |
| Nebenkostenvorauszahlung | 220,00 € |
| Gesamtmiete | 550,00 € |
| Kaution | 660,00 € |
| Etage/Lage | DG links |
| Ort | Gera-Kleinaga |
| Energieverbrauch | 147,9 kWh/(m²*a) |
| ID | 1300-24 |
Ausstattung
- Bad mit Dusche
- Küche mit Fenster
- Pkw-Stellplatz möglich


